Algemeen
Soestdijksekade 545 te Den Haag
RUIME TURN-KEY PARTERREWONING GELEGEN OP EIGEN GROND, MET MAAR LIEFST DRIE SLAAPKAMERS EN ZONNIGE ACHTERTUIN!!
Tot in de puntjes verzorgde, zeer goed onderhouden 4-kamer parterrewoning met drie slaapkamers en ruime berging in de achtertuin. Deze benedenwoning, gelegen in het gewilde Leyenburg, is in 2016 grotendeels gerenoveerd. Tijdens de renovatie zijn on... Meer informatie
RUIME TURN-KEY PARTERREWONING GELEGEN OP EIGEN GROND, MET MAAR LIEFST DRIE SLAAPKAMERS EN ZONNIGE ACHTERTUIN!!
Tot in de puntjes verzorgde, zeer goed onderhouden 4-kamer parterrewoning met drie slaapkamers en ruime berging in de achtertuin. Deze benedenwoning, gelegen in het gewilde Leyenburg, is in 2016 grotendeels gerenoveerd. Tijdens de renovatie zijn on... Meer informatie
-
Kenmerken
Alle kenmerken Type object Appartement, benedenwoning Bouwjaar 1938 Status Nieuw in verkoop Aangeboden sinds Vrijdag 13 februari 2026 -
Locatie
Kenmerken
| Overdracht | |
|---|---|
| Vraagprijs | € 400.000,- k.k. |
| Servicekosten | € 75,- |
| Status | Nieuw in verkoop |
| Aanvaarding | In overleg |
| Aangeboden sinds | Vrijdag 13 februari 2026 |
| Bouw | |
|---|---|
| Type object | Appartement, benedenwoning |
| Soort bouw | Bestaande bouw |
| Bouwjaar | 1938 |
| Type dak | Platdak |
| Isolatievormen | Dubbel glas |
| Oppervlaktes en inhoud | |
|---|---|
| Woonoppervlakte | 88 m² |
| Inhoud | 292 m³ |
| Oppervlakte externe bergruimte | 10 m² |
| Oppervlakte gebouwgebonden buitenruimte | 8 m² |
| Indeling | |
|---|---|
| Aantal bouwlagen | 1 |
| Aantal kamers | 4 (waarvan 3 slaapkamers) |
| Locatie | |
|---|---|
| Ligging | Aan drukke weg |
| Tuin | |
|---|---|
| Type | Achtertuin |
| Hoofdtuin | Ja |
| Oriëntering | Zuiden |
| Staat | Prachtig aangelegd |
| Tuin 2 - Type | Achtertuin |
| Tuin 2 - Staat | Prachtig aangelegd |
| Energieverbruik | |
|---|---|
| Energielabel | B |
| CV ketel | |
|---|---|
| CV ketel | Vaillant HR pro |
| Warmtebron | Gas |
| Bouwjaar | 2011 |
| Combiketel | Ja |
| Eigendom | Eigendom |
| Uitrusting | |
|---|---|
| Warm water | CV-ketel |
| Verwarmingssysteem | Centrale verwarming |
| Badkamervoorzieningen | Inloopdouche, Ligbad, Wastafel |
| Heeft kabel-tv | Ja |
| Tuin aanwezig | Ja |
| Heeft rolluiken | Ja |
| Heeft schuur/berging | Ja |
| Heeft een schuifpui | Ja |
| Heeft zonwering | Ja |
| Heeft ventilatie | Ja |
| Vereniging van Eigenaren | |
|---|---|
| Ingeschreven bij de KvK | Ja |
| Jaarlijkse vergadering | Ja |
| Periodieke bijdrage | Ja |
| Reservefonds | Ja |
| Onderhoudsverwachting | Ja |
| Opstal verzekering | Ja |
| Kadastrale gegevens | |
|---|---|
| Kadastrale aanduiding | Loosduinen N 3208 |
| Omvang | Appartementsrecht of complex |
| Eigendomsituatie | Eigen grond |
Beschrijving
Soestdijksekade 545 te Den Haag
RUIME TURN-KEY PARTERREWONING GELEGEN OP EIGEN GROND, MET MAAR LIEFST DRIE SLAAPKAMERS EN ZONNIGE ACHTERTUIN!!
Tot in de puntjes verzorgde, zeer goed onderhouden 4-kamer parterrewoning met drie slaapkamers en ruime berging in de achtertuin. Deze benedenwoning, gelegen in het gewilde Leyenburg, is in 2016 grotendeels gerenoveerd. Tijdens de renovatie zijn onder andere de badkamer, het toilet, standleiding, waterleidingen en gehele riolering vernieuwd. Daarnaast beschikt de woning over een fraai aangelegde achtertuin gelegen op het ZONNIGE zuidoosten!!
WELKOM IN LEYENBURG!
De Soestdijksekade is gelegen in de wijk Leyenburg. In deze rustige en groene woonwijk blijft men vaak voor langere tijd wonen. Voor uw dagelijkse boodschappen kunt u prima terecht bij het winkelcentrum aan het Monnickendamplein of bij het winkelcentrum Leyweg waar elke dinsdag een markt is en meerdere keren per jaar activiteiten worden georganiseerd. Het Florence Nightingalepark met kinderboerderij is tevens gevestigd in Leyenburg en de wijk grenst aan het Zuiderpark, waar van alles te beleven valt voor jong en oud.
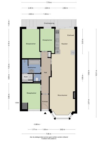
Indeling:
Begane grond:
Entree woning, tochtportaal met deur naar de hal. Hal met toegang tot voorzijkamer, badkamer, separaat toilet, achterzijkamer, achter tussenkamer en woonkamer. De voorzijkamer is thans in gebruik als hoofdslaapkamer en is van goed formaat. De luxe badkamer is voorzien van fraai tegelwerk en beschikt over een ligbad, inloopdouche, wastafelmeubel en spiegelkast. Via de badkamer is de praktisch ingedeelde wasruimte en de meterkast tevens bereikbaar. Toiletruimte is links naast de badkamer gelegen en is voorzien van een wandcloset. Achterzijkamer is thans in gebruik als kinderkamer en is aan de buitenzijde voorzien van een rolluik wat zorgt voor een koele kamer in de zomermaanden! Voormalig keuken is thans in gebruik als walk-in-closet. Woon-/eetkamer strekt zich over de volle lengte van de woning met aan de voorzijde de woonkamer en aan de achterzijde de luxe keuken. De keuken beschikt over voldoende kastruimte en heeft tevens een koel-/vriescombinatie, vaatwasser, gaskookplaat, ingebouwde afzuigkap en een rvs wastafel.
Achtertuin:
Middels de keuken en de achterzijkamer is de zonnige achtertuin bereikbaar. De achtertuin is in zijn volledigheid betegeld en heeft een ruime berging (voorzien van elektra en in 2018 aangebracht). Daarnaast is de achtertuin bijna pal op het zuiden gelegen waardoor deze voor heel wat zonuren garant staat!
Kenmerken:
- Bouwjaar 1938
- Woonoppervlakte: ca. 88 m2
- Inhoud: ca. 299 m2
- Op eigen grond gelegen
- Vier kamers, waarvan drie slaapkamers
- Luxe open keuken voorzien van diverse inbouwapparatuur
- Luxe badkamer met ligbad, inloopdouche, wastafelmeubel en spiegelkast
- Volledig voorzien van onderhoudsarme kunststof kozijnen met dubbelglas
- Fraai aangelegde achtertuin met zuidoosten ligging en vrijstaande houten berging voorzien van elektra
- Waterput in de achtertuin welke is aangesloten op de hemelwaterafvoer
- 2/7e aandeel in een actieve VvE met een maandbijdrage van € 75,00
- Oplevering in overleg.
Bij interesse adviseren wij u, uw eigen aankoopmakelaar in te schakelen!
Mocht u interesse hebben in deze woning maar u heeft uw eigen woning nog niet verkocht... bel dan zeker even met ons kantoor voor een vrijblijvende waardebepaling!
De gegeven informatie is met zorgvuldigheid opgesteld, aan de juistheid kunnen echter geen rechten worden ontleend. Alle verstrekte informatie moet beschouwd worden als een uitnodiging tot een bezichtiging, het doen van een aanbod of om in onderhandeling te treden.
RUIME TURN-KEY PARTERREWONING GELEGEN OP EIGEN GROND, MET MAAR LIEFST DRIE SLAAPKAMERS EN ZONNIGE ACHTERTUIN!!
Tot in de puntjes verzorgde, zeer goed onderhouden 4-kamer parterrewoning met drie slaapkamers en ruime berging in de achtertuin. Deze benedenwoning, gelegen in het gewilde Leyenburg, is in 2016 grotendeels gerenoveerd. Tijdens de renovatie zijn onder andere de badkamer, het toilet, standleiding, waterleidingen en gehele riolering vernieuwd. Daarnaast beschikt de woning over een fraai aangelegde achtertuin gelegen op het ZONNIGE zuidoosten!!
WELKOM IN LEYENBURG!
De Soestdijksekade is gelegen in de wijk Leyenburg. In deze rustige en groene woonwijk blijft men vaak voor langere tijd wonen. Voor uw dagelijkse boodschappen kunt u prima terecht bij het winkelcentrum aan het Monnickendamplein of bij het winkelcentrum Leyweg waar elke dinsdag een markt is en meerdere keren per jaar activiteiten worden georganiseerd. Het Florence Nightingalepark met kinderboerderij is tevens gevestigd in Leyenburg en de wijk grenst aan het Zuiderpark, waar van alles te beleven valt voor jong en oud.
Indeling:
Begane grond:
Entree woning, tochtportaal met deur naar de hal. Hal met toegang tot voorzijkamer, badkamer, separaat toilet, achterzijkamer, achter tussenkamer en woonkamer. De voorzijkamer is thans in gebruik als hoofdslaapkamer en is van goed formaat. De luxe badkamer is voorzien van fraai tegelwerk en beschikt over een ligbad, inloopdouche, wastafelmeubel en spiegelkast. Via de badkamer is de praktisch ingedeelde wasruimte en de meterkast tevens bereikbaar. Toiletruimte is links naast de badkamer gelegen en is voorzien van een wandcloset. Achterzijkamer is thans in gebruik als kinderkamer en is aan de buitenzijde voorzien van een rolluik wat zorgt voor een koele kamer in de zomermaanden! Voormalig keuken is thans in gebruik als walk-in-closet. Woon-/eetkamer strekt zich over de volle lengte van de woning met aan de voorzijde de woonkamer en aan de achterzijde de luxe keuken. De keuken beschikt over voldoende kastruimte en heeft tevens een koel-/vriescombinatie, vaatwasser, gaskookplaat, ingebouwde afzuigkap en een rvs wastafel.
Achtertuin:
Middels de keuken en de achterzijkamer is de zonnige achtertuin bereikbaar. De achtertuin is in zijn volledigheid betegeld en heeft een ruime berging (voorzien van elektra en in 2018 aangebracht). Daarnaast is de achtertuin bijna pal op het zuiden gelegen waardoor deze voor heel wat zonuren garant staat!
Kenmerken:
- Bouwjaar 1938
- Woonoppervlakte: ca. 88 m2
- Inhoud: ca. 299 m2
- Op eigen grond gelegen
- Vier kamers, waarvan drie slaapkamers
- Luxe open keuken voorzien van diverse inbouwapparatuur
- Luxe badkamer met ligbad, inloopdouche, wastafelmeubel en spiegelkast
- Volledig voorzien van onderhoudsarme kunststof kozijnen met dubbelglas
- Fraai aangelegde achtertuin met zuidoosten ligging en vrijstaande houten berging voorzien van elektra
- Waterput in de achtertuin welke is aangesloten op de hemelwaterafvoer
- 2/7e aandeel in een actieve VvE met een maandbijdrage van € 75,00
- Oplevering in overleg.
Bij interesse adviseren wij u, uw eigen aankoopmakelaar in te schakelen!
Mocht u interesse hebben in deze woning maar u heeft uw eigen woning nog niet verkocht... bel dan zeker even met ons kantoor voor een vrijblijvende waardebepaling!
De gegeven informatie is met zorgvuldigheid opgesteld, aan de juistheid kunnen echter geen rechten worden ontleend. Alle verstrekte informatie moet beschouwd worden als een uitnodiging tot een bezichtiging, het doen van een aanbod of om in onderhandeling te treden.