Algemeen
Aan een rustig en kindvriendelijke wandel- en fietspad staat deze prachtige, uitgebouwde eengezinswoning met dakkapel, riante masterbedroom, zeer ruime badkamer en prachtige zijtuin. Deze woning is gelegen op 1 van de mooiste locaties van de wijk met aan voorzijde een singel en vrij uitzicht en aan de achterzijde een gezellig hofje met parkeergelegenheid en een leuke speelplaats voor de kindere... Meer informatie
-
Kenmerken
Alle kenmerken Type object Eengezinswoning, woonhuis, hoekwoning Bouwjaar 2002 Status Nieuw in verkoop Aangeboden sinds Zondag 14 december 2025 -
Locatie
Kenmerken
| Overdracht | |
|---|---|
| Prijs | € 697.500,- k.k. |
| Status | Nieuw in verkoop |
| Aanvaarding | In overleg |
| Aangeboden sinds | Zondag 14 december 2025 |
| Bouw | |
|---|---|
| Type object | Eengezinswoning, woonhuis, hoekwoning |
| Soort bouw | Bestaande bouw |
| Bouwjaar | 2002 |
| Dakbedekking | Dakpannen |
| Type dak | Zadeldak |
| Isolatievormen | Dubbel glas, Volledig geïsoleerd |
| Oppervlaktes en inhoud | |
|---|---|
| Perceeloppervlakte | 206 m² |
| Woonoppervlakte | 141 m² |
| Inhoud | 498 m³ |
| Indeling | |
|---|---|
| Aantal bouwlagen | 3 |
| Aantal kamers | 4 (waarvan 3 slaapkamers) |
| Locatie | |
|---|---|
| Ligging | Aan rustige weg, Beschutte ligging, In woonwijk |
| Tuin | |
|---|---|
| Type | Zijtuin |
| Hoofdtuin | Ja |
| Oriëntering | Zuidoost |
| Staat | Normaal |
| Tuin 2 - Type | Achtertuin |
| Tuin 2 - Staat | Normaal |
| Tuin 3 - Type | Voortuin |
| Tuin 3 - Staat | Normaal |
| Tuin 4 - Type | Zijtuin |
| Tuin 4 - Staat | Normaal |
| Energieverbruik | |
|---|---|
| Energielabel | A |
| Uitrusting | |
|---|---|
| Warm water | Centrale voorziening |
| Verwarmingssysteem | Stadsverwarming |
| Badkamervoorzieningen | Dubbele wastafel, Inloopdouche, Jacuzzi, Ligbad, Toilet |
| Tuin aanwezig | Ja |
| Heeft schuur/berging | Ja |
| Heeft zonnecollectoren | Ja |
| Heeft ventilatie | Ja |
| Kadastrale gegevens | |
|---|---|
| Kadastrale aanduiding | Rotterdam BC 917 |
| Perceeloppervlakte | 206 m² |
| Omvang | Geheel perceel |
| Eigendomsituatie | Eigen grond |
Beschrijving
Aan een rustig en kindvriendelijke wandel- en fietspad staat deze prachtige, uitgebouwde eengezinswoning met dakkapel, riante masterbedroom, zeer ruime badkamer en prachtige zijtuin. Deze woning is gelegen op 1 van de mooiste locaties van de wijk met aan voorzijde een singel en vrij uitzicht en aan de achterzijde een gezellig hofje met parkeergelegenheid en een leuke speelplaats voor de kinderen.
Indeling van de woning:
Begane grond:
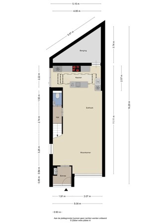
Entree/hal met meterkast, riante woonkamer, luxe en moderne design keuken met granieten blad, vaatwasmachine, inductie kookplaat, RVS afzuigschouw, combi magnetron, koelkast en veel lades, vanuit de keuken is er veel lichtinval dankzij de mooie glazen lichtstraat in het dak, de loopdeur naar de achtertuin en de schuifpui naar de volledig gerenoveerde zijtuin met overkapping. Vanuit de woonkamer is de tussenhal bereikbaar met trapopgang en toegang tot het moderne toilet met fonteintje en mechanische ventilatie,
Eerste verdieping:
Overloop, voorslaapkamer, zeer ruime master-bedroom, Aan de voorzijde is de uitermate luxe designbadkamer (voorheen badkamer en slaapkamer) voorzien van een royale inloopdouche, hangcloset 2 wastafels (villeroy en boch), designradiator en een exclusieve bubbel/jetstream hoekligbad. De badkamer is afgewerkt met een fraaie zwarte granieten vloer, verlaagd plafond met inbouwspots en muurschildering bij het hoekligbad,
Tweede verdieping:
Via vaste trap te bereiken ruime voorzolder met wasmachineaansluiting, mechanische ventilatie en toegang tot de slaapkamer. De zeer ruime slaapkamer is voorzien van een kunststof dakkapel. Op relatief eenvoudige wijze is er van de verdieping 2 kamers te maken.
Kenmerken:
- Uitbouw met prachtig lichtinval in de keuken
- Volledige tuin vernieuwd in 2024 (tegels muren en overkapping)
- Gelegen op eigen grond!
- Oplevering in overleg
- 10 zonnepanelen, geplaatst in 2023
- Bouwjaar 2002
- Woning volledig geïsoleerd
- Fraai aan autovrij pad en aan singel gelegen
- Verwarming en warmwatervoorziening door middel van stadsverwarming
- Woonoppervlakte: ca. 141 m²
Rotterdam-Nesselande is een moderne en levendige wijk, prachtig gelegen aan de Zevenhuizerplas. Deze wijk combineert stedelijk wonen met een ontspannen strandgevoel. Met een brede boulevard, het stadsstrand en diverse recreatiemogelijkheden is Nesselande een geliefde plek voor bewoners en bezoekers.
Nesselande beschikt over vier basisscholen met verschillende onderwijsvormen: een christelijke school, een openbare tweetalige basisschool, een daltonbasisschool en een vrijeschool. Voor middelbaar onderwijs zijn er in de nabije omgeving goede opties, zoals het Comenius College in Nieuwerkerk en het Emmaus College in Rotterdam.
Op culinair gebied zijn Guay, Brasserie Lookies en L’Italiano populaire hotspots. Voor de lekkerste koffie is er Mamamo! Een fijne plek waar ouders kunnen ontspannen terwijl de kinderen spelen.
De wijk is uitstekend bereikbaar via het metrostation Nesselande, dat snelle verbindingen biedt naar Rotterdam centrum en omliggende gebieden. Daarnaast kent Nesselande diverse sportclubs, waardoor er volop mogelijkheden zijn om actief te zijn.
Kortom, Nesselande biedt voor ieder wat wils: een moderne, groene en kindvriendelijke woonomgeving met goede voorzieningen, leuke eetgelegenheden en volop recreatie.
Interesse? Neem contact op met ons kantoor voor een vrijblijvende bezichtiging.
Indeling van de woning:
Begane grond:
Entree/hal met meterkast, riante woonkamer, luxe en moderne design keuken met granieten blad, vaatwasmachine, inductie kookplaat, RVS afzuigschouw, combi magnetron, koelkast en veel lades, vanuit de keuken is er veel lichtinval dankzij de mooie glazen lichtstraat in het dak, de loopdeur naar de achtertuin en de schuifpui naar de volledig gerenoveerde zijtuin met overkapping. Vanuit de woonkamer is de tussenhal bereikbaar met trapopgang en toegang tot het moderne toilet met fonteintje en mechanische ventilatie,
Eerste verdieping:
Overloop, voorslaapkamer, zeer ruime master-bedroom, Aan de voorzijde is de uitermate luxe designbadkamer (voorheen badkamer en slaapkamer) voorzien van een royale inloopdouche, hangcloset 2 wastafels (villeroy en boch), designradiator en een exclusieve bubbel/jetstream hoekligbad. De badkamer is afgewerkt met een fraaie zwarte granieten vloer, verlaagd plafond met inbouwspots en muurschildering bij het hoekligbad,
Tweede verdieping:
Via vaste trap te bereiken ruime voorzolder met wasmachineaansluiting, mechanische ventilatie en toegang tot de slaapkamer. De zeer ruime slaapkamer is voorzien van een kunststof dakkapel. Op relatief eenvoudige wijze is er van de verdieping 2 kamers te maken.
Kenmerken:
- Uitbouw met prachtig lichtinval in de keuken
- Volledige tuin vernieuwd in 2024 (tegels muren en overkapping)
- Gelegen op eigen grond!
- Oplevering in overleg
- 10 zonnepanelen, geplaatst in 2023
- Bouwjaar 2002
- Woning volledig geïsoleerd
- Fraai aan autovrij pad en aan singel gelegen
- Verwarming en warmwatervoorziening door middel van stadsverwarming
- Woonoppervlakte: ca. 141 m²
Rotterdam-Nesselande is een moderne en levendige wijk, prachtig gelegen aan de Zevenhuizerplas. Deze wijk combineert stedelijk wonen met een ontspannen strandgevoel. Met een brede boulevard, het stadsstrand en diverse recreatiemogelijkheden is Nesselande een geliefde plek voor bewoners en bezoekers.
Nesselande beschikt over vier basisscholen met verschillende onderwijsvormen: een christelijke school, een openbare tweetalige basisschool, een daltonbasisschool en een vrijeschool. Voor middelbaar onderwijs zijn er in de nabije omgeving goede opties, zoals het Comenius College in Nieuwerkerk en het Emmaus College in Rotterdam.
Op culinair gebied zijn Guay, Brasserie Lookies en L’Italiano populaire hotspots. Voor de lekkerste koffie is er Mamamo! Een fijne plek waar ouders kunnen ontspannen terwijl de kinderen spelen.
De wijk is uitstekend bereikbaar via het metrostation Nesselande, dat snelle verbindingen biedt naar Rotterdam centrum en omliggende gebieden. Daarnaast kent Nesselande diverse sportclubs, waardoor er volop mogelijkheden zijn om actief te zijn.
Kortom, Nesselande biedt voor ieder wat wils: een moderne, groene en kindvriendelijke woonomgeving met goede voorzieningen, leuke eetgelegenheden en volop recreatie.
Interesse? Neem contact op met ons kantoor voor een vrijblijvende bezichtiging.