Algemeen
*** Teijlerstraat 111 te 's-Gravenhage ***
Zeer goed onderhouden 5-kamer eengezinswoning met 4 slaapkamers, ruime voortuin, groot dakterras en diepe achtertuin!
Ligging en woonomgeving:
Ideaal gesitueerd in een rustige straat, in het fraaie project Nieuw Valkenbos (gebouwd in 2002 doch in jaren dertig stijl) direct nabij winkels (Weimar- Fahrenheit- en Reinkenstraat), de Haagse binnensta... Meer informatie
Zeer goed onderhouden 5-kamer eengezinswoning met 4 slaapkamers, ruime voortuin, groot dakterras en diepe achtertuin!
Ligging en woonomgeving:
Ideaal gesitueerd in een rustige straat, in het fraaie project Nieuw Valkenbos (gebouwd in 2002 doch in jaren dertig stijl) direct nabij winkels (Weimar- Fahrenheit- en Reinkenstraat), de Haagse binnensta... Meer informatie
-
Kenmerken
Alle kenmerken Type object Eengezinswoning, woonhuis, tussenwoning Bouwjaar 2002 Status Onder bod Aangeboden sinds Maandag 5 januari 2026 -
Locatie
Kenmerken
| Overdracht | |
|---|---|
| Prijs | € 587.500,- k.k. |
| Status | Onder bod |
| Aanvaarding | In overleg |
| Aangeboden sinds | Maandag 5 januari 2026 |
| Laatste wijziging | Donderdag 19 februari 2026 |
| Bouw | |
|---|---|
| Type object | Eengezinswoning, woonhuis, tussenwoning |
| Soort bouw | Bestaande bouw |
| Bouwjaar | 2002 |
| Dakbedekking | Dakpannen |
| Type dak | Mansardedak |
| Isolatievormen | Dakisolatie, Dubbel glas, Gedeeltelijk dubbel glas, Muurisolatie, Vloerisolatie |
| Oppervlaktes en inhoud | |
|---|---|
| Perceeloppervlakte | 104 m² |
| Woonoppervlakte | 112 m² |
| Inhoud | 395 m³ |
| Oppervlakte externe bergruimte | 6 m² |
| Oppervlakte gebouwgebonden buitenruimte | 19 m² |
| Tuinoppervlakte | 58 m² |
| Indeling | |
|---|---|
| Aantal bouwlagen | 3 |
| Aantal kamers | 5 (waarvan 4 slaapkamers) |
| Locatie | |
|---|---|
| Ligging | Aan rustige weg, In woonwijk |
| Tuin | |
|---|---|
| Type | Achtertuin |
| Hoofdtuin | Ja |
| Staat | Goed onderhouden |
| Tuin 2 - Type | Achtertuin |
| Tuin 2 - Staat | Goed onderhouden |
| Tuin 3 - Type | Voortuin |
| Tuin 3 - Staat | Goed onderhouden |
| Energieverbruik | |
|---|---|
| Energielabel | B |
| CV ketel | |
|---|---|
| CV ketel | Remeha Avanta |
| Warmtebron | Gas |
| Bouwjaar | 2019 |
| Combiketel | Ja |
| Eigendom | Eigendom |
| Uitrusting | |
|---|---|
| Warm water | CV-ketel |
| Verwarmingssysteem | Centrale verwarming |
| Badkamervoorzieningen | Douche, Ligbad, Toilet, Wastafel |
| Heeft een balkon | Ja |
| Heeft kabel-tv | Ja |
| Tuin aanwezig | Ja |
| Heeft schuur/berging | Ja |
| Kadastrale gegevens | |
|---|---|
| Kadastrale aanduiding | 's-Gravenhage AM 8371 |
| Perceeloppervlakte | 104 m² |
| Omvang | Geheel perceel |
| Eigendomsituatie | Eigendom belast met erfpacht |
Beschrijving
*** Teijlerstraat 111 te 's-Gravenhage ***
Zeer goed onderhouden 5-kamer eengezinswoning met 4 slaapkamers, ruime voortuin, groot dakterras en diepe achtertuin!
Ligging en woonomgeving:
Ideaal gesitueerd in een rustige straat, in het fraaie project Nieuw Valkenbos (gebouwd in 2002 doch in jaren dertig stijl) direct nabij winkels (Weimar- Fahrenheit- en Reinkenstraat), de Haagse binnenstad, openbaar vervoer (zowel bus als tramverbindingen (RandstadRail 2 en 4 en tram 12), scholen en speeltuinen.
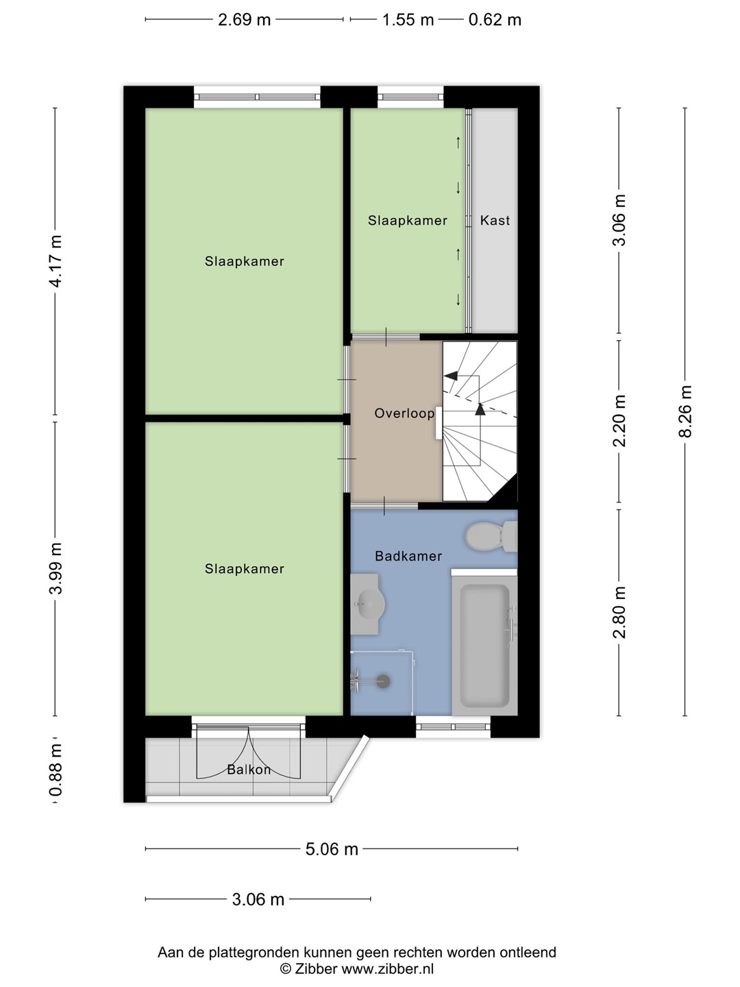
De indeling en maatvoering zijn terug te vinden op de plattegronden maar hierbij alvast een samenvatting:
Voortuin, entree, hal met meterkast, toilet met fontein, trap naar eerste verdieping, aan voorzijde gelegen royale eetkeuken met diverse inbouwapparatuur, tuingerichte-, lichte woonkamer met praktisch aangelegde achtertuin voorzien van veel privacy en berging,
Eerste verdieping:
Overloop: trap naar tweede verdieping, goede slaapkamer aan voorzijde met veel lichtinval, zeer ruime master-bedroom aan achterzijde over de volledige achterzijde van de woning, volledig betegelde badkamer voorzien van inloopdouche, toilet, ligbad en wastafelmeubel,
Tweede verdieping:
Overloop: stookruime met daglichttoetreding (raam) alwaar opstelplaats WTW en CV ketel, 2 slaapkamers, ruim dakterras.
Het weten waard:
- Gelegen in zeer gewilde Valkenboskwartier
- Gebruiksoppervlakte wonen circa 112 m2;
- Energielabel B;
- Eeuwigdurend afgekochte erfpacht;
- Bouwjaar 2002;
- Goed geïsoleerde woning;
- Geheel voorzien van dubbel glas;
- Warmte terugwin installatie;
- Oplevering in overleg, kan snel.
Kortom, een verrassend familiehuis met heerlijke tuin gelegen in gewilde woonomgeving.
Zeer goed onderhouden 5-kamer eengezinswoning met 4 slaapkamers, ruime voortuin, groot dakterras en diepe achtertuin!
Ligging en woonomgeving:
Ideaal gesitueerd in een rustige straat, in het fraaie project Nieuw Valkenbos (gebouwd in 2002 doch in jaren dertig stijl) direct nabij winkels (Weimar- Fahrenheit- en Reinkenstraat), de Haagse binnenstad, openbaar vervoer (zowel bus als tramverbindingen (RandstadRail 2 en 4 en tram 12), scholen en speeltuinen.
De indeling en maatvoering zijn terug te vinden op de plattegronden maar hierbij alvast een samenvatting:
Voortuin, entree, hal met meterkast, toilet met fontein, trap naar eerste verdieping, aan voorzijde gelegen royale eetkeuken met diverse inbouwapparatuur, tuingerichte-, lichte woonkamer met praktisch aangelegde achtertuin voorzien van veel privacy en berging,
Eerste verdieping:
Overloop: trap naar tweede verdieping, goede slaapkamer aan voorzijde met veel lichtinval, zeer ruime master-bedroom aan achterzijde over de volledige achterzijde van de woning, volledig betegelde badkamer voorzien van inloopdouche, toilet, ligbad en wastafelmeubel,
Tweede verdieping:
Overloop: stookruime met daglichttoetreding (raam) alwaar opstelplaats WTW en CV ketel, 2 slaapkamers, ruim dakterras.
Het weten waard:
- Gelegen in zeer gewilde Valkenboskwartier
- Gebruiksoppervlakte wonen circa 112 m2;
- Energielabel B;
- Eeuwigdurend afgekochte erfpacht;
- Bouwjaar 2002;
- Goed geïsoleerde woning;
- Geheel voorzien van dubbel glas;
- Warmte terugwin installatie;
- Oplevering in overleg, kan snel.
Kortom, een verrassend familiehuis met heerlijke tuin gelegen in gewilde woonomgeving.