Beschrijving

*** Teijlerstraat 111 te 's-Gravenhage ***

Zeer goed onderhouden 5-kamer eengezinswoning met 4 slaapkamers, ruime voortuin, groot dakterras en diepe achtertuin!

Ligging en woonomgeving:
Ideaal gesitueerd in een rustige straat, in het fraaie project Nieuw Valkenbos (gebouwd in 2002 doch in jaren dertig stijl) direct nabij winkels (Weimar- Fahrenheit- en Reinkenstraat), de Haagse binnenstad, openbaar vervoer (zowel bus als tramverbindingen (RandstadRail 2 en 4 en tram 12), scholen en speeltuinen.

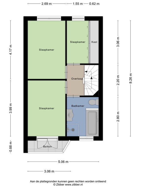
De indeling en maatvoering zijn terug te vinden op de plattegronden maar hierbij alvast een samenvatting:

Voortuin, entree, hal met meterkast, toilet met fontein, trap naar eerste verdieping, aan voorzijde gelegen royale eetkeuken met diverse inbouwapparatuur, tuingerichte-, lichte woonkamer met praktisch aangelegde achtertuin voorzien van veel privacy en berging,

Eerste verdieping:
Overloop: trap naar tweede verdieping, goede slaapkamer aan voorzijde met veel lichtinval, zeer ruime master-bedroom aan achterzijde over de volledige achterzijde van de woning, volledig betegelde badkamer voorzien van inloopdouche, toilet, ligbad en wastafelmeubel, 

Tweede verdieping:
Overloop: stookruime met daglichttoetreding (raam) alwaar opstelplaats WTW en CV ketel, 2 slaapkamers, ruim dakterras.



Het weten waard:
- Gelegen in zeer gewilde Valkenboskwartier
- Gebruiksoppervlakte wonen circa 112 m2;
- Energielabel B;
- Eeuwigdurend afgekochte erfpacht;
- Bouwjaar 2002;
- Goed geïsoleerde woning;
- Geheel voorzien van dubbel glas;
- Warmte terugwin installatie;
- Oplevering in overleg, kan snel.

Kortom, een verrassend familiehuis met heerlijke tuin gelegen in gewilde woonomgeving.

Kenmerken