Beschrijving

Op rustige locatie in de woonwijk Vogelweide ligt deze instapklare 6-kamer bovenwoning die van alle gemakken is voorzien. De woning beschikt over een moderne afwerking en heeft maar liefst een woonoppervlakte van 128 m2. In de ochtend kunt u genieten van de zon op uw eigen dakterras. De fiets parkeert u makkelijk in u eigen berging op de begaande grond. Deze woning is gelegen nabij het gezellige dorpscentrum en op loopafstand vindt u de winkels voor de dagelijkse boodschappen, zoals een Jumbo, Kruidvat, bakker en groentewinkel. Verder vindt u de basisscholen, buitenschoolse opvang en sportfaciliteiten allemaal op loopafstand. De historische binnenstad van Leiden is op nog geen 15 minuten fietsen. Gelegen aan de rand van het Groene Hart met fietspaden en wandelgebied.
Via de uitvalswegen A4 richting Schiphol, Amsterdam, Den Haag en Rotterdam en N11/A12 richting Utrecht bent u snel in de grote steden in de Randstad. Het openbaar vervoer is op loopafstand.

Indeling:

Begane grond:
Een overdekte entree, hal met meterkast en trapopgang, eigen berging, trap naar eerste verdieping,

Eerste verdieping:
Overloop, toilet, trap naar tweede verdieping, ruime-, L-vormige woonkamer, aan voorzijde gelegen keuken met keukenblok in wandopstelling voorzien van diverse inbouwapparatuur, vanuit de keuken toegang tot ruim dakterras met vlonderdelen,

Tweede verdieping:
Overloop, trap naar derde verdieping, 
3 ruime slaapkamers waarvan 1 met schuifkast, goed onderhouden badkamer voorzien van inloopdouche, wastafelmeubel en tweede toilet,

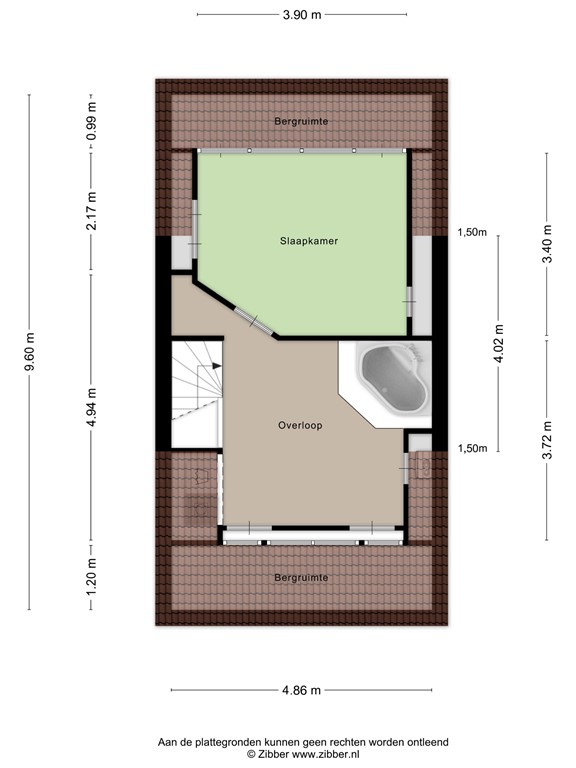
Derde verdieping:
Voorslaapkamer voorzien van hoekbad met daar rondom heen een tegelvloer en wasmachine en droger aansluiting, vlieringtrap naar een vliering, achterslaapkamer met veel opbergruimte in de knieschotten.

Bijzonderheden:
- gebruikersoppervlakte woonruimte 128 m²
- dakterras 15 m²
- 5-slaapkamers!
- Gelegen op eigen grond
- Oplevering in overleg
- Energielabel C
- Actieve VVE met maandelijkse bijdrage van €160,=

Kenmerken