Beschrijving

Van Halewijnlaan 170 te Voorburg

In deze kindvriendelijke wijk, bekend om zijn charmante jaren ’30 woningen, bieden wij aan dit leuke appartement gelegen op de eerste verdieping. Deze woning ligt in een rustige straat en ligt ideaal dicht bij alles wat u nodig heeft: winkelcentrum De Julianabaan, het oude centrum van Voorburg, de Haagse Theresiastraat en het trein-/metrostation Den Haag Laan van NOI op loopafstand. Met de fiets bereikt u binnen 10 minuten de Haagse binnenstad. Ook The Mall of the Netherlands en het strand van Scheveningen zijn gemakkelijk bereikbaar met het openbaar vervoer, de fiets of auto.


Indeling;
Open portiek met trap naar de eerste verdieping. Entree van het appartement, hal met meterkast, modern badkamer met toilet en fonteintje. Woonkamer met een erker aan de voorzijde. Keuken met aansluiting van de wasmachine en opstelling voor de CV ketel en toegang tot het balkon. De hoofdslaapkamer ligt aan de achterzijde en is voorzien van een vaste kasten wand, de tweede slaapkamer is ook gelegen aan de achterzijde van het appartement. 

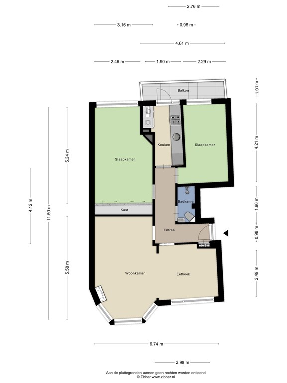
Voor uitgebreide maatvoering verwijzen wij u naar de plattegrond.

Bijzonderheden:
- Bouwjaar 1931
- Energielabel volgt
- Gelegen op eigen grond
- Woonoppervlak 74 m² (gemeten conform NVM meetinstructie)
- 2 slaapkamers
- Nefit Smartline HR combiketel 
- 1/3e aandeel in de VvE, bijdrage € 75,- per maand
- Ouderdomsclausule en materialenclausule zullen worden opgenomen in de koopovereenkomst
- Uitstekende verbinding met openbaar vervoer (station Laan van NOI, en verbinding Randstad Rail op 5 minuten lopen)
- Uitstekende bereikbaarheid en binnen enkele minuten op de snelwegen (A12, A4, A13)
- Oplevering in overleg, kan snel

Interesse in dit huis? Schakel direct uw eigen NVM-aankoopmakelaar in. Uw NVM-aankoopmakelaar komt op voor uw belang en bespaart u tijd, geld en zorgen. 

Adressen van collega NVM- aankoopmakelaars in Haaglanden vindt u op Funda. Deze informatie is geheel vrijblijvend, uitsluitend voor geadresseerde bestemd en niet bedoeld als aanbod. Ten aanzien van de juistheid van de vermelde informatie kan door de verkopend makelaar en haar opdrachtgever geen aansprakelijkheid worden aanvaard, noch kan aan de vermelde informatie enig recht worden ontleend.

Kenmerken