| Prijs | € 350.000,- k.k. |
| Type object | Eengezinswoning, woonhuis, tussenwoning |
| Perceeloppervlakte | 94 m² |
| Woonoppervlakte | 106 m² |
| Aanvaarding | In overleg |
| Status | Verkocht onder voorbehoud |
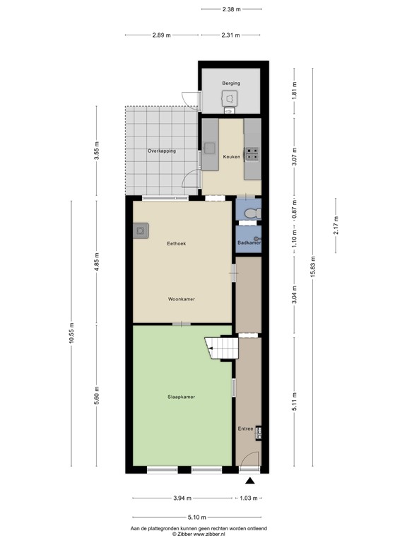
Concordiastraat 21 te Hoek van Holland Wonen in het hartje van Hoek van Holland, winkels en metro om de hoek Vijfkamerwoning met tuin en terras aan de Concordiastraat, uitstekend onderhouden. Het is een van de gezelligste straatjes van Hoek van Holland. Middenin het centrum, met alles wat je nodig hebt op loopafstand. Gebouwd in 1910, dus barstend van de sfeer. Concordiastraat 21 is een keurige eengezinswoning met 4 slaapkamers, een binnenplaatsje en een dakterras. Indeling: Entree woning, gang, meterkast, trap naar 1e etage, woonkamer, eetkamer, nette keuken met keukenblok in wandopstelling voorzien van koelkast, vriezer, 4-pit gaskookplaat, afzuigkap, oven en vaatwasser, badruimte met toilet en douche, gezellige binnenplaats met overkapping, 1e etage: Overloop, zijkamer met veel lichtinval, ruime voorslaapkamer, 2e badkamer met toilet, douchecabine en wastafelmeubel, ruime achterslaapkamer met toegang tot leuk dakterras. Bijzonderheden: - Gelegen op eigen grond - Oplevering per direct - De woning beschikt over 4 slaapkamers - Een goed onderhouden familiewoning - Combiketel bouwjaar 2018 - Gelegen in hartje centrum van Hoek van Holland
| Vraagprijs | € 350.000,- k.k. |
| Status | Verkocht onder voorbehoud |
| Aanvaarding | In overleg |
| Aangeboden sinds | Woensdag 17 december 2025 |
| Laatste wijziging | Woensdag 11 februari 2026 |
| Type object | Eengezinswoning, woonhuis, tussenwoning |
| Soort bouw | Bestaande bouw |
| Bouwjaar | 1910 |
| Dakbedekking | Dakpannen |
| Type dak | Zadeldak |
| Isolatievormen | Dubbel glas |
| Perceeloppervlakte | 94 m² |
| Woonoppervlakte | 106 m² |
| Inhoud | 389 m³ |
| Oppervlakte externe bergruimte | 4 m² |
| Oppervlakte gebouwgebonden buitenruimte | 20 m² |
| Aantal bouwlagen | 2 |
| Aantal kamers | 5 (waarvan 4 slaapkamers) |
| Ligging | Aan rustige weg In woonwijk |
| Type | Achtertuin |
| Hoofdtuin | Ja |
| Heeft een achterom | Ja |
| Staat | Normaal |
| Tuin 2 - Type | Achtertuin |
| Tuin 2 - Staat | Normaal |
| Tuin 3 - Type | Zonneterras |
| Tuin 3 - Staat | Normaal |
| Energielabel | F |
| CV ketel | Intergas HR |
| Warmtebron | Gas |
| Bouwjaar | 2018 |
| Combiketel | Ja |
| Eigendom | Eigendom |
| Warm water | CV-ketel |
| Verwarmingssysteem | Centrale verwarming Open haard |
| Badkamervoorzieningen Badkamer 1 | Douche Toilet Wastafel |
| Badkamervoorzieningen Badkamer 2 | Douche Toilet |
| Tuin aanwezig | Ja |
| Heeft schuur/berging | Ja |
| Kadastrale aanduiding | Hoek van Holland B 532 |
| Perceeloppervlakte | 94 m² |
| Omvang | Geheel perceel |
| Eigendomsituatie | Eigen grond |