Beschrijving

Spionkopstraat 47a Den Haag 

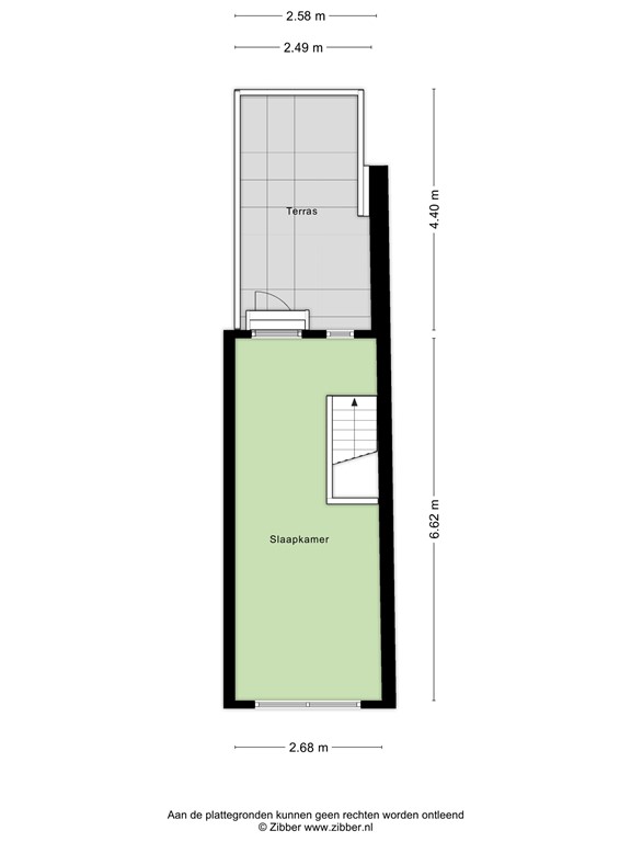
Unieke-, 3/4-kamer benedenwoning met slaapkamer en terras op de 1e etage. Dit appartement is een voormalige garage welke volledig is gerenoveerd, waarbij een extra verdieping met terras is gerealiseerd. Er bestaat de mogelijk om dit object ook als woon/werk locatie te gebruiken. Dit appartement ligt super centraal tussen Hobbemaplein/Paul Krugerlaan en de Haagse Markt. Winkels en supermarkten (o.a. Albert Heijn aan de Hobbemastraat) liggen op loopafstand; tramlijnen 6 (halte Hobbemaplein/Paul Krugerplein) en 12 brengen je vlot richting centrum, HS/CS en Scheveningen.

Indeling: Entree begane grond, ontvangstruimte/werkruimte met trap naar 1e etage, 
slaapkamer, woonruimte, modern keuken met diverse inbouwapparatuur, stookruimte, luxe badkamer met wastafelmeubel, toilet en inloopdouche.

1e etage: Ruime slaapkamer met toegang tot ruim dakterras.


Bijzonderheden:
- Oplevering per direct.
- Het appartement is recentelijk volledig gerenoveerd 
- Vloerverwarming begane grond
- Naast wonen tevens geschikt voor wonen met werk
- Gasvrije-, volledig geisoleerde woning met A-label 
- HR++ Beglazing
- Actieve VVE met bijdrage €25,= per maand 
- Gelegen op erfpachtsgrond waarbij de canon eeuwigdurend is afgekocht

Kenmerken