Beschrijving

Soestdijksekade 255 te 's-Gravenhage 

Dit 4 kamer appartement op de 1e verdieping is gelegen in de gezellige wijk Rustenburg-Oostbroek en is voorzien van een eigen fietsenberging op de begane grond en heeft een weids uitzicht over het water van de Soestdijksekade. Vanuit de woning maak je gemakkelijk gebruik van het openbaar vervoer, inclusief het OV-knooppunt bij het Haga-ziekenhuis. Het centrum van Den Haag, de treinstations en het strand zijn allen goed bereikbaar met OV of fiets. Ook winkels, scholen en sportfaciliteiten zijn in de buurt. Het Zuiderpark ligt op slechts 10 minuten lopen. Hier vindt je verschillende sportaccommodaties, een zwembad, wandel- en skateroutes en is het een ideale plek voor sport en ontspanning.

Indeling:
- Open portiek met trap naar de 1e etage;
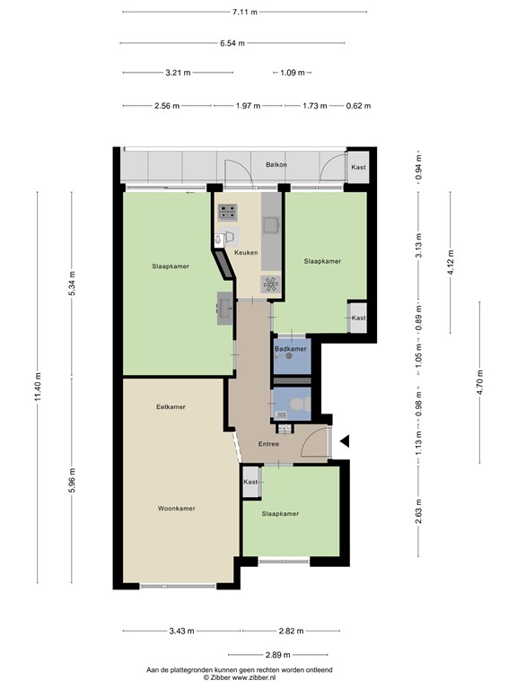
- Entree van de woning, hal met meterkast en toilet met fonteintje;
- Lichte woonkamer (ca. 6,07 x 3,40 m) met weids uitzicht over de Soestdijksekade;
- Slaapkamer (ca. 5,30 x 3,20/2,56 m) gelegen aan de achterzijde van de woning met schuifpui naar het balkon en vaste wastafel;
- 2e slaapkamer (ca. 4,12 x 2,69 m) tevens gelegen aan de achterzijde van de woning met toegang tot de doucheruimte;
- 3e slaapkamer (ca. 2,63 x 2,81 m) gelegen aan de voorzijde van de woning;
- Dichte keuken (ca. 3,12 x 1,91/0,97 m) met deur naar het balkon;
- Het zonnige balkon is gelegen op het zuidwesten.

Bijzonderheden:
- Bouwjaar 1939;
- Gelegen op eigen grond;
- Zeer actieve Vereniging van Eigenaren, maandelijkse bijdrage ca. €92,44
- Geheel voorzien van dubbel glas;
- Verwarming en warm water middels cv-ketel, Remeha 2021;
- Energielabel B;
- Oplevering in overleg.

Interesse in dit huis? U kunt een eigen NVM-aankoopmakelaar inschakelen. Uw NVM-aankoopmakelaar komt op voor uw belang en kunt u tijd, geld en zorgen besparen. Adressen van collega NVM- aankoopmakelaars vindt u op Funda. Deze informatie is geheel vrijblijvend, uitsluitend voor geadresseerde bestemd en niet bedoeld als aanbod. Ten aanzien van de juistheid van de vermelde informatie kan door de verkopend makelaar en haar opdrachtgever geen aansprakelijkheid worden aanvaard, noch kan aan de vermelde informatie enig recht worden ontleend.

Kenmerken